Logiciel dimensionnement béton : Quel Logiciel de Dimensionnement pour les Structures Béton Armé ? (Update 2026)

Logiciel dimensionnement béton : Introduction & Paysage Stratégique 2026
Le choix d’un logiciel dimensionnement béton est une décision stratégique qui conditionne la performance, la sécurité et la rentabilité d’un projet de génie civil. En 2026, cet arbitrage ne se limite plus à une simple comparaison de fonctionnalités de calcul. Il s’inscrit dans un écosystème complexe, dicté par des impératifs de décarbonation, d’intégration numérique et d’optimisation des ressources. La pression réglementaire, notamment avec les évolutions de la RE2020 vers 2025/2026, impose une analyse du cycle de vie (ACV) de plus en plus fine, où le logiciel devient l’outil pivot pour quantifier l’empreinte carbone dès la phase de conception.
L’ingénieur structure doit désormais arbitrer entre des solutions matérielles (bétons bas-carbone, aciers recyclés) et des optimisations géométriques. Un logiciel dimensionnement béton performant doit permettre de simuler ces scénarios rapidement, en intégrant les propriétés mécaniques spécifiques de ces nouveaux matériaux. La tendance est à l’analyse paramétrique, où des algorithmes explorent des milliers de variantes de conception pour identifier celle qui offre le meilleur compromis entre la résistance mécanique (exprimée en MPa), le coût et l’impact carbone (en kg CO2eq/m²).
Parallèlement, l’ère du Jumeau Numérique (Digital Twin) est une réalité. Le modèle de calcul n’est plus une entité isolée ; il est le cœur structurel du modèle BIM global. L’interopérabilité via des formats ouverts comme l’IFC 4.3 devient non-négociable. Le logiciel doit assurer une communication fluide avec les plateformes d’architecture (Apprenez Revit : Formation complète en architecture 3D), de MEP et de gestion de projet, garantissant que la `note de calcul` est en parfaite cohérence avec les plans d’exécution et le Suivi Chantier : Méthodologie Complète pour l’Ingénieur (OPC) (Guide 2026).
Logiciel dimensionnement béton : Plongée Technique & Principes d’Ingénierie
Au-delà de l’interface, un logiciel dimensionnement béton est avant tout un moteur de calcul basé sur des principes physiques et mathématiques rigoureux. Sa fiabilité dépend de sa capacité à traduire la complexité du comportement des matériaux et des assemblages en un modèle numérique exploitable. La méthode des éléments finis (MEF) reste le socle de la majorité de ces outils, discrétisant la structure en un maillage d’éléments (poutres, coques, solides) interconnectés par des nœuds.
Principes Physiques et Mécanique des Structures (RDM)
Le cœur du réacteur est la Résistance des Matériaux (RDM). Le logiciel applique les équations fondamentales de l’équilibre statique (ΣF=0, ΣM=0) pour la descente de charges. Il calcule les sollicitations (effort normal, effort tranchant, moment fléchissant, torsion) dans chaque élément sous l’effet des charges permanentes (G), d’exploitation (Q), climatiques (neige, vent) et accidentelles (séisme, choc). La précision de la `modélisation 3D` est ici critique : une mauvaise définition des conditions aux limites (appuis simples, encastrements, rotules) peut fausser intégralement la distribution des efforts et conduire à un sous-dimensionnement dangereux.
Le comportement des matériaux est modélisé par des lois contrainte-déformation (σ-ε). Pour le béton, le diagramme parabole-rectangle de l’Eurocode 2 est une référence, définissant sa `résistance caractéristique` en compression (fck) et son module d’élasticité. Pour l’acier, une loi bilinéaire élasto-plastique parfaite est souvent utilisée, caractérisée par sa `limite d’élasticité` (fyk). Les logiciels avancés intègrent des modèles non-linéaires pour simuler la fissuration du béton, le fluage et le comportement plastique des aciers, essentiels pour des analyses poussées (analyse pushover, calcul à la ruine).
Les combinaisons d’actions sont générées automatiquement selon les États Limites Ultimes (ELU) et de Service (ELS) définis par l’Eurocode 0. Par exemple, une combinaison type à l’ELU est 1.35G + 1.5Q. Le logiciel vérifie ensuite que pour chaque élément, la sollicitation de calcul (Ed) reste inférieure ou égale à la résistance de calcul (Rd). Cette résistance intègre des `coefficients de sécurité` partiels (γc pour le béton, γs pour l’acier) qui couvrent les incertitudes sur les matériaux et la modélisation.
Le rôle du logiciel dimensionnement béton dans le workflow
Le processus d’utilisation d’un logiciel dimensionnement béton est une méthodologie rigoureuse qui engage la responsabilité de l’`Ingénieur structure`.
1. Phase de Modélisation (Pré-processeur) : L’ingénieur du `bureau d’études` importe la géométrie depuis un logiciel de CAO/BIM (Comparatif AutoCAD vs Revit : Quel Logiciel Choisir en 2026 ?) ou la crée directement. Il définit les sections (poutres, poteaux), les épaisseurs (dalles, voiles), les matériaux (classe de béton C25/30, nuance d’acier B500B) et les conditions d’appuis. Cette étape est cruciale et requiert une expertise pour simplifier le modèle sans trahir le comportement réel de la structure.

2. Définition des Charges : Application des charges permanentes (poids propre calculé automatiquement avec une masse volumique de ~2500 kg/m3 pour le béton armé, charges des cloisons, revêtements) et des charges d’exploitation (selon l’usage du bâtiment, en kN/m²). Les charges de vent et de neige sont générées via des modules intégrés conformes à l’Eurocode 1.
3. Analyse & Calcul (Solveur) : Lancement du calcul. Le solveur (souvent multi-cœur pour accélérer le processus) résout le système de millions d’équations matricielles pour déterminer les déplacements, les efforts et les contraintes. Pour une `analyse sismique`, des méthodes modales spectrales ou temporelles sont employées, nécessitant la définition des masses et des spectres de réponse réglementaires.
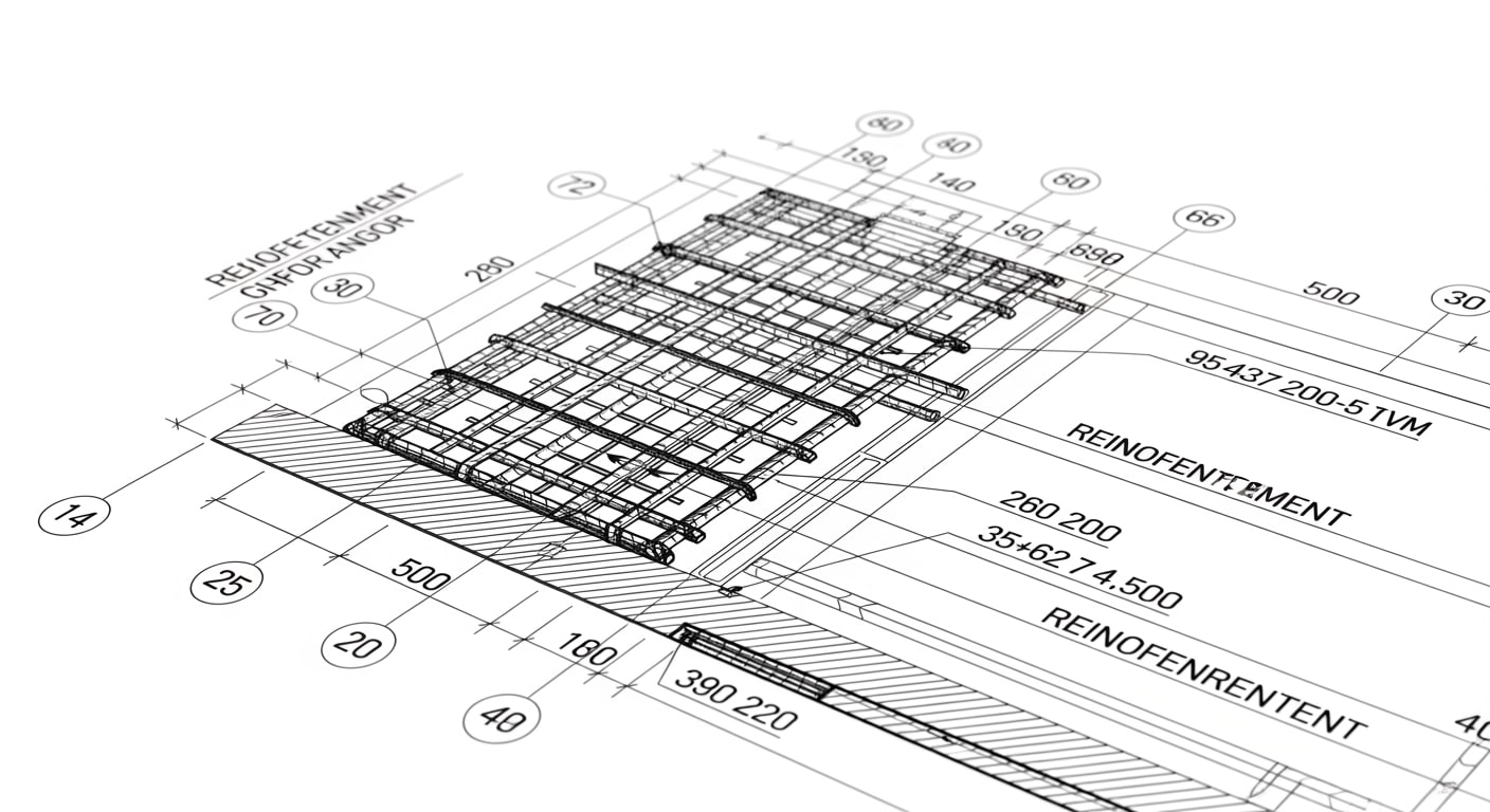
4. Post-traitement et Dimensionnement : C’est la phase d’interprétation. L’ingénieur analyse les résultats : cartographies de contraintes, déformées, moments fléchissants. Le logiciel procède ensuite au calcul ferraillage béton. Il détermine les sections d’armatures longitudinales (en cm²) et transversales (espacement en cm) nécessaires pour reprendre les efforts, en respectant les ratios minimaux et maximaux de l’Eurocode 2.
5. Génération des Livrables : Le logiciel produit la `note de calcul` détaillée, un document technique justifiant chaque hypothèse et chaque résultat. Il exporte également les plans de ferraillage, soit directement, soit via une connexion avec un logiciel de dessin spécialisé. Ce document est un élément contractuel fondamental, engageant la responsabilité décennale de l’ingénieur.
Logiciel dimensionnement béton : Innovations & Benchmarking des Leaders du Marché
Le marché du logiciel dimensionnement béton est dominé par quelques acteurs majeurs qui définissent les tendances. En 2026, la compétition se joue sur l’intégration BIM, l’automatisation par l’IA et la performance des solveurs pour les analyses non-linéaires.
Quel logiciel dimensionnement béton pour quelle application ?
1. Autodesk Robot Structural Analysis Professional:
Intégré à l’écosystème Autodesk, Robot Structural Analysis excelle par son lien bidirectionnel avec Revit. Cette synergie permet un workflow fluide où les modifications architecturales sont rapidement répercutées sur le modèle d’analyse. Sa force réside dans ses solveurs robustes pour l’analyse dynamique et non-linéaire, et sa capacité à gérer des géométries complexes. La feuille de route 2026 se concentre sur l’intégration de modules d’optimisation topologique assistée par IA pour proposer des formes structurelles plus efficientes en matière et en carbone.
2. Tekla Structures & Tekla Structural Designer (Trimble):
Tekla / Trimble se positionne comme le leader de la modélisation « constructible ». Tekla Structures va au-delà du simple calcul en offrant un niveau de détail (LOD) extrêmement élevé pour le `ferraillage` et les assemblages. Son avantage est la production de plans d’atelier et de fichiers pour machines à commande numérique (FAO), réduisant les erreurs sur chantier. Tekla Structural Designer, quant à lui, est un outil d’analyse et de dimensionnement global qui se synchronise parfaitement avec le modèle détaillé, créant un écosystème complet de la conception à la fabrication.
3. CYPECAD (CYPE Ingenieros):
CYPE est très apprécié pour sa spécialisation dans le bâtiment et son approche pragmatique. CYPECAD est un outil tout-en-un extrêmement productif pour les bâtiments courants (logements, bureaux). Il intègre le calcul de structure, le dimensionnement des fondations, et même des modules pour les installations (fluides, électricité). Sa feuille de route 2026 met l’accent sur l’intégration de la plateforme BIMserver.center pour une collaboration cloud ouverte et l’enrichissement de ses modules d’analyse énergétique et d’impact carbone, en lien direct avec les exigences RE2020.
Logiciel dimensionnement béton : La Table de Comparaison Maîtresse de 4Génie Civil
Ce tableau synthétise les performances attendues des principaux logiciels en 2026, offrant une base objective pour guider votre choix de logiciel dimensionnement béton.
| Paramètres Techniques | Unité | Performance Standard (Robot) | Performance 2026 (ETABS) | Performance 2026 (Tekla SD) | Performance 2026 (Graitec AD) | Performance 2026 (CYPECAD) |
|---|---|---|---|---|---|---|
| Interopérabilité BIM (IFC) | Version | IFC 4.0 | IFC 4.3 (avec support MVD) | IFC 4.3 (orienté fabrication) | IFC 4.2 | IFC 4.2 (via BIMserver.center) |
| Vitesse Solveur (Analyse Linéaire) | Millions DDL/min | ~1.5 | ~2.5 | ~2.0 | ~1.8 | ~1.7 |
| Analyse Non-Linéaire Matériau | Capacité | Bonne (Plast., Fissuration) | Excellente (Time-History) | Bonne (Pushover) | Bonne (Plast., Fissuration) | Limitée (Poteaux/Poutres) |
| Optimisation Topologique (IA) | Niveau | Émergent (via Dynamo) | Intégration tierce | Non prioritaire | En développement (Partenariat) | Non |
| Module ACV (RE2020) | Intégration | Partielle (via export) | Partielle (via API) | Bonne (via Trimble Connect) | Excellente (Greentech) | Native et complète |
| Impact ROI (Temps de sortie Note de Calcul) | % Réduction / Manuel | 60% | 70% | 65% (80% avec plans) | 65% | 75% (pour bâtiments standards) |
| Empreinte Carbone (Optimisation) | Potentiel de réduction | 5-10% | 10-15% | 5-10% | 10-20% | 10-15% |
Logiciel dimensionnement béton : Normes, Eurocodes & Protocoles de Sécurité
L’utilisation d’un logiciel dimensionnement béton n’exonère en rien l’ingénieur de sa responsabilité normative. Le logiciel est un outil, pas un oracle. La validation des résultats passe par une maîtrise parfaite des référentiels, principalement la famille des Eurocodes.
L’Eurocode 2 (NF EN 1992) est la bible pour le béton armé et précontraint. Il dicte les règles de calcul pour la flexion, le cisaillement, la torsion, le poinçonnement, ainsi que les dispositions constructives (enrobage, espacement des armatures, longueurs d’ancrage). Le logiciel doit implémenter rigoureusement les formules de l’EC2 et son Annexe Nationale française. Une vérification manuelle par sondage sur des éléments clés (la poutre la plus chargée, le poteau le plus élancé) reste une pratique indispensable.
L’Eurocode 8 (NF EN 1998) régit le `calcul de structure` en zone sismique. Il impose des exigences spécifiques sur la ductilité des éléments et la hiérarchie des résistances (« poteau fort – poutre faible »). Un logiciel dimensionnement béton conforme doit proposer des modules de ferraillage sismique qui appliquent automatiquement ces règles complexes, notamment pour les zones critiques de confinement des nœuds poutre-poteau.
Le logiciel dimensionnement béton face aux normes sismiques
L’analyse sismique modale spectrale est la méthode la plus courante. Le logiciel calcule les modes propres de vibration de la structure (fréquences et déformées modales) et applique le spectre de réponse élastique défini par la réglementation pour la zone sismique du projet. Il combine ensuite les réponses modales (via CQC ou SRSS) pour obtenir les efforts maximaux probables. L’ingénieur doit vérifier la cohérence des résultats : la participation de masse modale, la période fondamentale du bâtiment, et l’amplitude des déplacements inter-étages.
Stratégie de Mitigation des Risques sur Chantier
Le risque majeur est l’écart entre le modèle numérique et la réalité construite. Une stratégie de mitigation robuste s’articule autour de la traçabilité et du contrôle.
1. Phase Conception : L’ingénieur doit documenter clairement toutes les hypothèses dans la `note de calcul` : classe de résistance du béton (ex: C30/37), nuance d’acier, hypothèses géotechniques (Interprétation d’un Rapport de Sol Géotechnique (Mission G2)), etc.
2. Phase Exécution : Le plan de contrôle qualité doit inclure des points d’arrêt critiques. Avant chaque bétonnage, une vérification systématique doit être effectuée à l’aide de fiches de contrôle. La Fiche de Contrôle Ferraillage : Modèle Prêt à Télécharger (2026) permet de valider que les diamètres, quantités et positionnements des aciers sont conformes aux plans issus du logiciel.
3. Interface Design-Build : La communication entre le `bureau d’études` et l’équipe travaux est essentielle. Toute modification sur site (ex: ajout d’une trémie non prévue) doit faire l’objet d’une demande formelle et d’une validation par l’ingénieur structure, qui mettra à jour son modèle de calcul pour vérifier l’impact. Le Procès-verbal Type de Compte Rendu de Réunion : Modèle Word Gratuit (Guide 2026) est un outil clé pour tracer ces échanges.
Logiciel dimensionnement béton : Checklist Opérationnelle du Chef de Chantier
Pour le manager de site, le modèle numérique se matérialise par des plans et des quantités. La vérification sur le terrain est la dernière barrière de sécurité. Voici les points de contrôle critiques à intégrer dans votre Rapport Journalier de Chantier : Pourquoi et Comment le Rédiger ? (Guide 2026).
- Vérification des Plans : S’assurer de disposer de la dernière version des plans de ferraillage (indice de révision). Croiser les informations avec la note de calcul pour les éléments critiques.
- Contrôle du Coffrage : Valider les dimensions internes du coffrage par rapport aux plans de structure. Utiliser une Fiche de Contrôle Coffrage : Un Modèle Prêt à Télécharger (2026) pour systématiser la vérification.
- Réception des Aciers : Contrôler les étiquettes de livraison des aciers pour vérifier la conformité de la nuance (ex: B500B) et des diamètres.
- Positionnement du Ferraillage : Vérifier le nombre de barres, leur diamètre, leur espacement et leurs longueurs de recouvrement. Une attention particulière doit être portée aux zones de forte densité (nœuds, appuis).
- Validation de l’Enrobage : Mesurer l’enrobage (distance entre l’acier et le bord du coffrage) à l’aide de cales. Un enrobage insuffisant compromet gravement la durabilité de l’ouvrage (corrosion).
- Attentes et Recouvrements : S’assurer que les aciers en attente pour les éléments supérieurs (poteaux, voiles) sont correctement positionnés, protégés et respectent les longueurs d’ancrage requises.
- Contrôle avant Bétonnage : Effectuer une dernière inspection visuelle de la cage d’armature. Vérifier la propreté du fond de coffrage et l’absence de corps étrangers. Documenter via une Fiche de Contrôle Bétonnage : Modèle Prêt à Télécharger (2026).
- Conformité du Béton : Vérifier sur le bon de livraison que la classe de résistance du béton livré (ex: C25/30) correspond à celle spécifiée sur les plans. Réaliser les prélèvements pour les essais de résistance à 28 jours.
Le choix et l’utilisation maîtrisée d’un outil numérique sont au cœur de la performance en ingénierie moderne. Pour aller plus loin, explorez notre guide sur comment choisir le meilleur logiciel de calcul structure. La rigueur dans l’application de ces principes garantit la construction d’ouvrages sûrs, durables et économiques, en parfaite adéquation avec les exigences techniques et réglementaires. Le meilleur outil reste l’expertise de l’ingénieur qui pilote le logiciel dimensionnement béton.

❓ FAQ : Logiciel dimensionnement béton
Comment un logiciel gère-t-il l’analyse du poinçonnement dans les dalles champignons selon l’Eurocode 2 ?
-
Le logiciel définit des périmètres de contrôle critiques (u0, u1, u_out) autour des poteaux.
- Il calcule la contrainte de cisaillement vEd et la compare à la résistance au poinçonnement vRd,c (sans armatures) et vRd,max.
- Si nécessaire, il détermine la section d’armatures de poinçonnement (étriers, goujons) requise pour satisfaire la vérification vEd ≤ vRd,cs.
Quelle est l’approche pour modéliser l’interaction sol-structure dans un logiciel d’éléments finis ?
-
L’approche la plus courante consiste à modéliser le sol par des ressorts de raideur équivalente (coefficient de réaction du sol k, en kN/m³), appliqués sous le radier ou les semelles.
- Pour une analyse plus fine, des modèles de sol non-linéaires (type Mohr-Coulomb) ou des éléments volumiques représentant le massif de sol peuvent être utilisés.
Comment les logiciels de calcul intègrent-ils les effets du fluage et du retrait du béton ?
-
Pour l’analyse des déformations à long terme, le logiciel utilise un module d’élasticité effectif du béton, E_c,eff = E_cm / (1 + φ(t,t0)), où φ est le coefficient de fluage calculé selon l’Annexe B de l’EC2.
- Le retrait est modélisé comme une déformation imposée (ε_cs), générant des contraintes internes dans les structures hyperstatiques.
Un logiciel peut-il réaliser une analyse de résistance au feu pour une structure en béton armé ?
-
Oui, les logiciels avancés proposent des modules d’analyse thermique.
- Ils calculent la distribution de la température dans la section en béton (isothermes) après une durée d’exposition au feu (ex: 120 min).
- Ensuite, une analyse mécanique est menée avec les propriétés résiduelles (réduites) des matériaux à haute température pour vérifier la stabilité de l’élément.
Comment modéliser l’impact de vibrations de machines industrielles sur une dalle en béton ?
-
On réalise une analyse dynamique temporelle (time-history) ou harmonique.
- La machine est modélisée par une force oscillante F(t) = F0.sin(ωt) appliquée sur la dalle.
- Le logiciel calcule la réponse vibratoire (amplitudes, vitesses, accélérations) de la structure, en tenant compte de l’amortissement, pour vérifier le confort des usagers et l’intégrité des équipements sensibles.
📥 Ressources : Formations complète robot structure

Abderrahim El Kouriani supervise personnellement la ligne éditoriale, veillant à ce que le contenu reflète les dernières innovations technologiques (modélisation des données du bâtiment, RE2020) et les réalités des marchés marocain et international. Sa connaissance approfondie des enjeux du secteur lui permet d’anticiper les besoins des étudiants, des ingénieurs et des professionnels.
